Баня-КБ 2

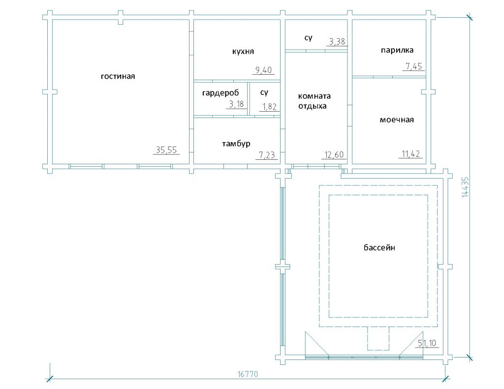
Площадь: 143.13 м²
  • Описание
  • Планы
Описание

Спроектирован и построен в 2012 году специалистами компании «Сибирская Усадьба» в г. Абакан, респ. Хакасия. Конструктор сруба изготовлен на собственной производственной базе компании. Общая площадь 143,13 м2.

Планы

Фото реализованных объектов

Заинтересовал проект или появились вопросы?

Мы перезвоним вам в течение минуты

Перезвоните мне

Похожие проекты

Наверх