Баня-ОБ 8

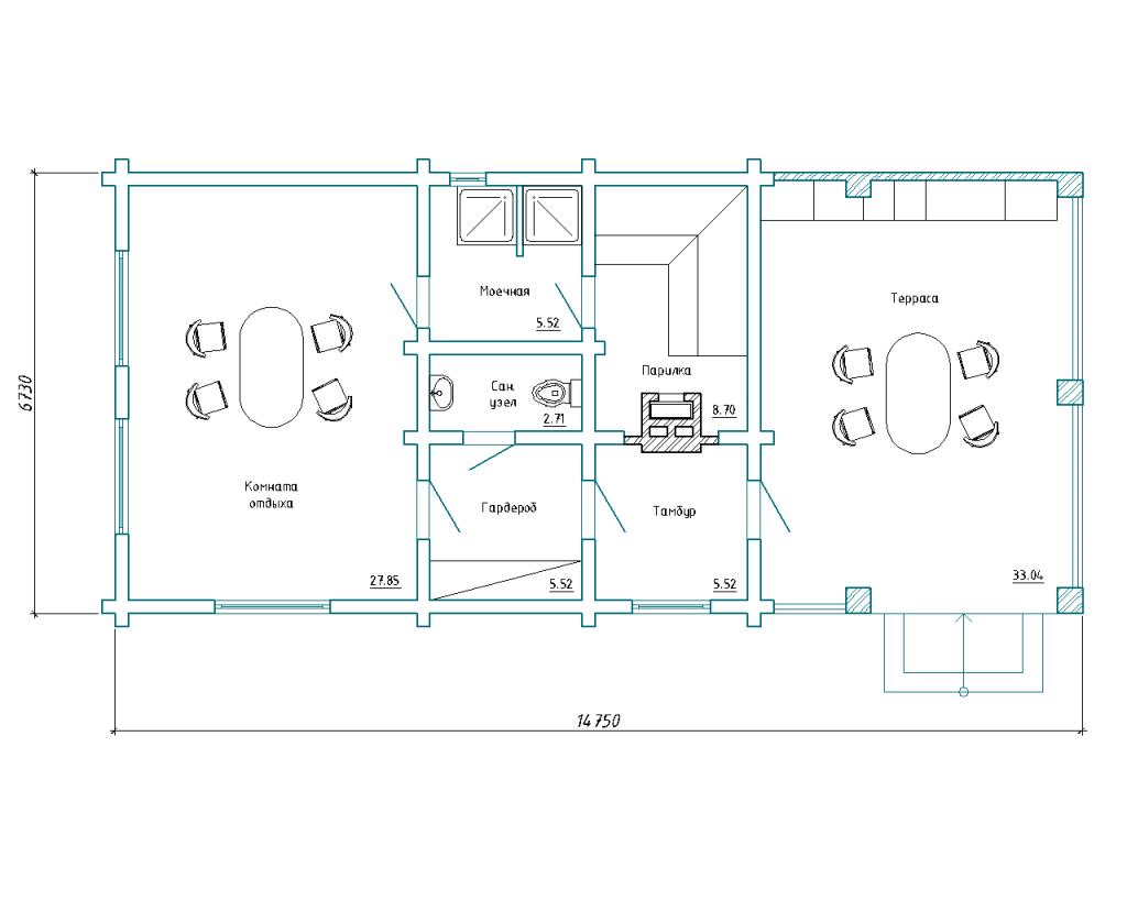
Площадь: 88.86 м²
  • Описание
  • Планы
Описание

Спроектирован и построен в 2014 году специалистами компании «Сибирская Усадьба» в г. Красноярск. Конструктор сруба изготовлен на собственной производственной базе компании. Общая площадь 88,86 м2. 

Планы

Фото реализованных объектов

Заинтересовал проект или появились вопросы?

Мы перезвоним вам в течение минуты

Перезвоните мне

Похожие проекты

Наверх