Баня-ОБ 6

Площадь: 98.6 м²
  • Описание
  • Планы
Описание

Спроектирован и построен в 2014 году специалистами компании «Сибирская Усадьба» в п. Элита, Красноярский край. Конструктор сруба изготовлен на собственной производственной базе компании. Общая площадь 98,60 м2. 

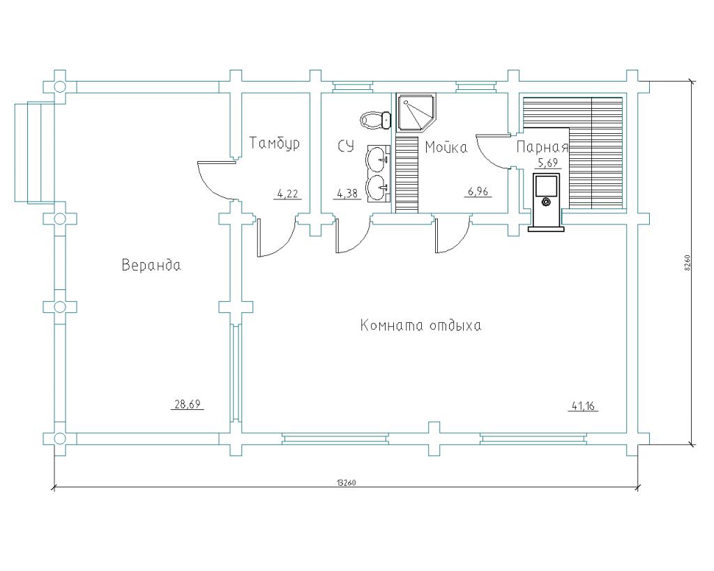
Планы

Заинтересовал проект или появились вопросы?

Мы перезвоним вам в течение минуты

Перезвоните мне

Похожие проекты

Наверх