Баня-БЦ 3

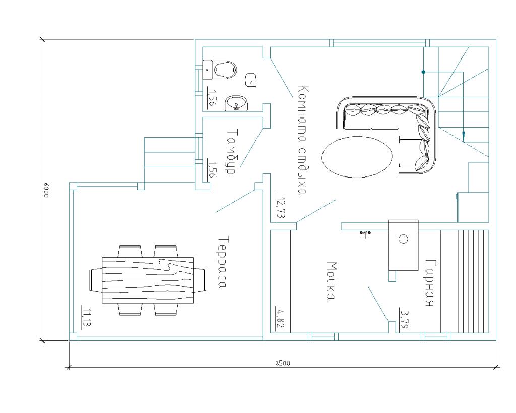
Площадь: 65.15 м²
  • Описание
  • Планы
Описание

Спроектирован и построен в 2012 году специалистами компании «Сибирская Усадьба» в с. о. «Победа» №80, Красноярский край. Конструктор сруба изготовлен на собственной производственной базе компании. Общая площадь 65,15 м2. 

Фото реализованных объектов

Заинтересовал проект или появились вопросы?

Мы перезвоним вам в течение минуты

Перезвоните мне

Похожие проекты

Наверх