Баня-БЦ 2

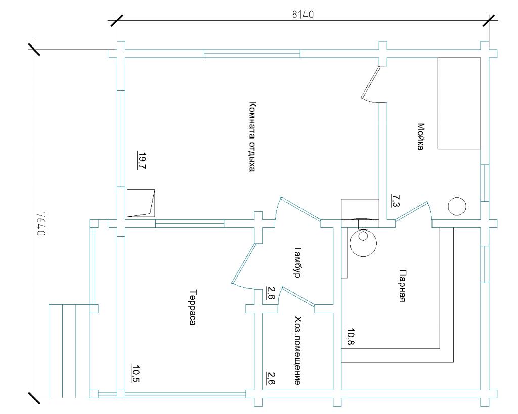
Площадь: 58.99 м²
  • Описание
  • Планы
Описание

Спроектирован и построен в 2012 году специалистами компании «Сибирская Усадьба» в г. Красноярск. Конструктор сруба изготовлен на собственной производственной базе компании. Общая площадь 58,99 м2. 

Планы

Заинтересовал проект или появились вопросы?

Мы перезвоним вам в течение минуты

Перезвоните мне

Похожие проекты

Наверх