Баня-ОБ 7

Площадь: 197.2 м²
  • Описание
  • Планы
Описание

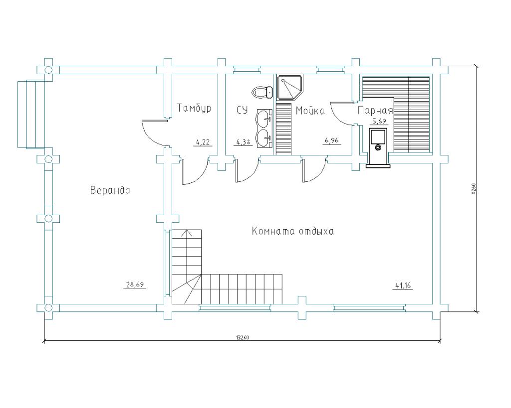
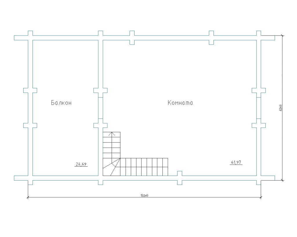
Спроектирован и построен в 2014 году специалистами компании «Сибирская Усадьба» в п. Элита, Красноярский край. Конструктор сруба изготовлен на собственной производственной базе компании. Общая площадь 197,20 м2. 

Фото реализованных объектов

Заинтересовал проект или появились вопросы?

Мы перезвоним вам в течение минуты

Перезвоните мне

Похожие проекты

Наверх