Дом-ТР 3

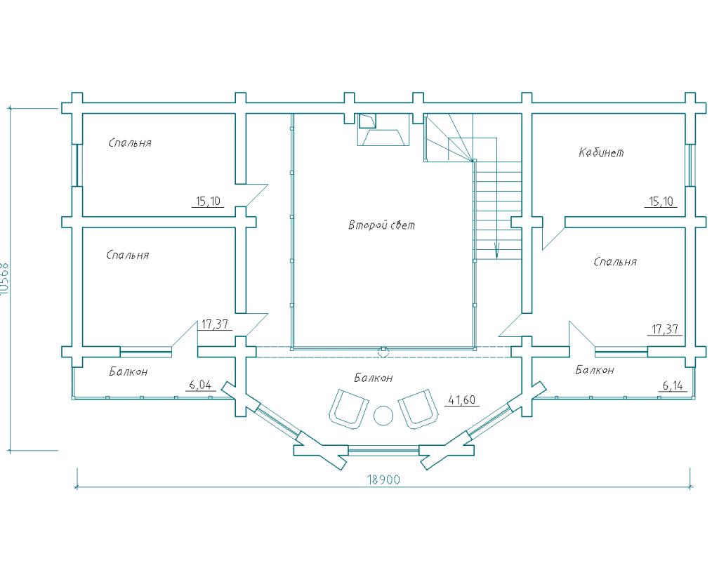
Площадь: 329.7 м²
  • Описание
  • Планы
Описание

Спроектирован и построен в 2011 году специалистами компании «Сибирская Усадьба» в г. Красноярск. Конструктор сруба изготовлен на собственной производственной базе компании. Общая площадь дома 329,7 м2. 

Заинтересовал проект или появились вопросы?

Мы перезвоним вам в течение минуты

Перезвоните мне

Похожие проекты

Наверх