Дом-НР 2

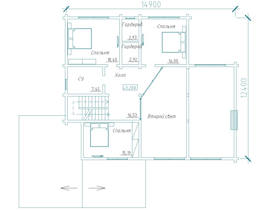
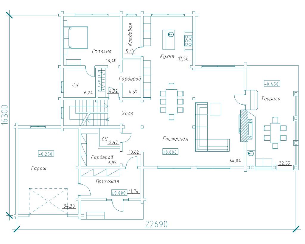
Площадь: 360.05 м²
  • Описание
  • Планы
Описание

Построен в 2012 году специалистами компании «Сибирская Усадьба» в г. Москва. Конструктор сруба изготовлен на собственной производственной базе компании. Общая площадь дома 360,05 м2. 

Архитектор Вера Фролова (г.Москва).

Фото реализованных объектов

Заинтересовал проект или появились вопросы?

Мы перезвоним вам в течение минуты

Перезвоните мне

Похожие проекты

Наверх