Дом-ТР 17

Площадь: 244.61 м²
  • Описание
  • Планы
Описание

Спроектирован и построен в 2015 году специалистами компании «Сибирская Усадьба» в г. Красноярск. Конструктор сруба изготовлен на собственной производственной базе компании.

  • Гараж
  • Спортзал
  • Комната для бильярда
  • Тех. помещения
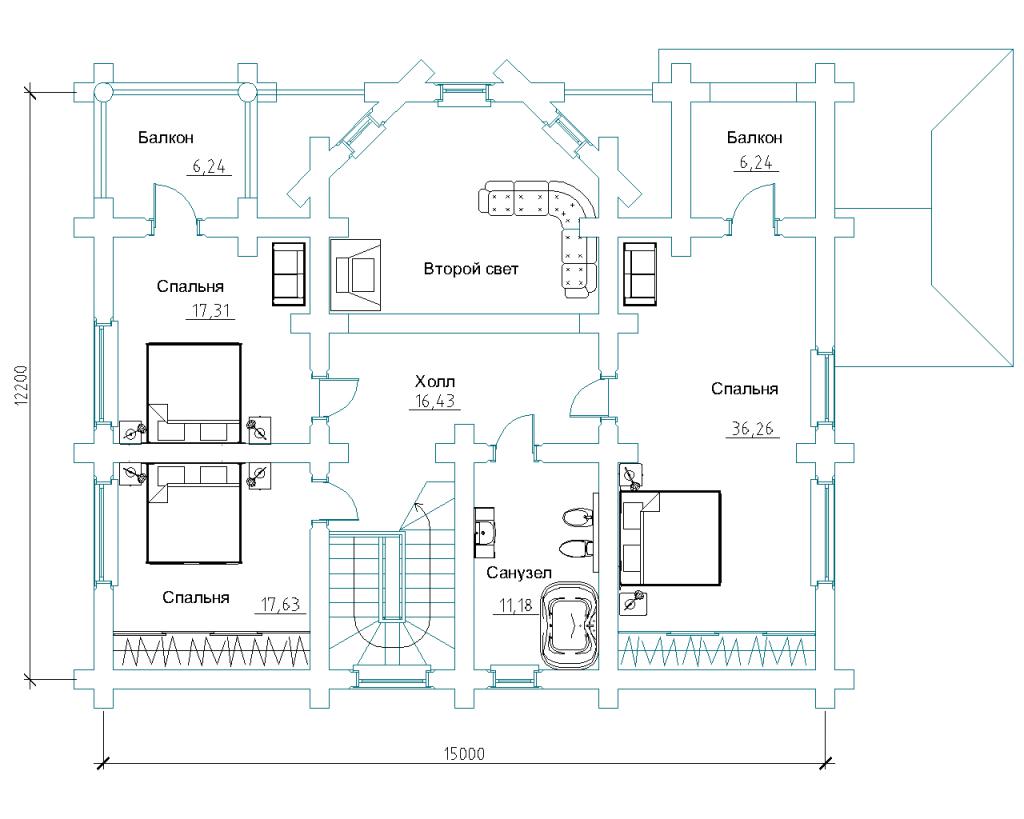
  • Гостиная со вторым светом
  • Кухня-столовая
  • Кабинет
  • Большая летняя терраса
  • 3 спальни
  • Балкон

Фото реализованных объектов

Заинтересовал проект или появились вопросы?

Мы перезвоним вам в течение минуты

Перезвоните мне

Похожие проекты

Наверх