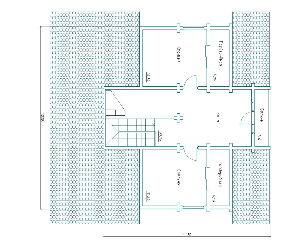
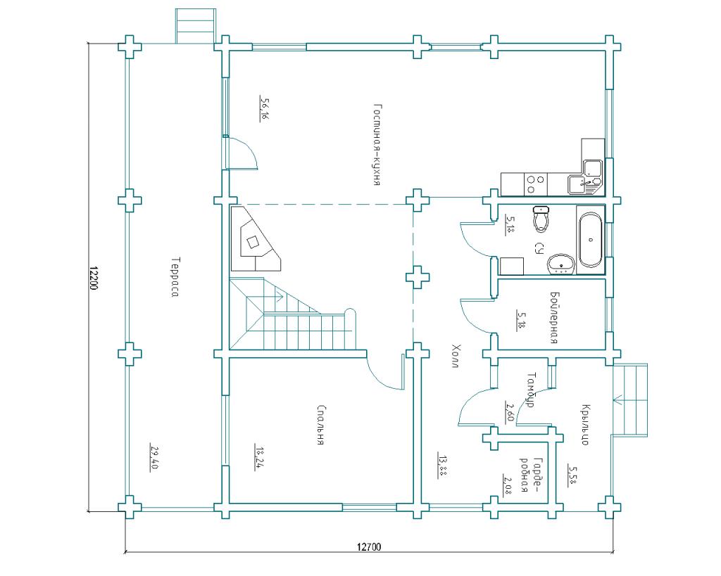
Дом-БЦ 4

Площадь: 230 м²
  • Описание
  • Планы
Описание

Спроектирован и построен в 2013 году специалистами компании «Сибирская Усадьба» в Березовском р-не, Красноярский край. Конструктор сруба изготовлен на собственной производственной базе компании. Общая площадь дома 230,00 м2. 

Заинтересовал проект или появились вопросы?

Мы перезвоним вам в течение минуты

Перезвоните мне

Похожие проекты

Наверх