Дом-ПБ 6

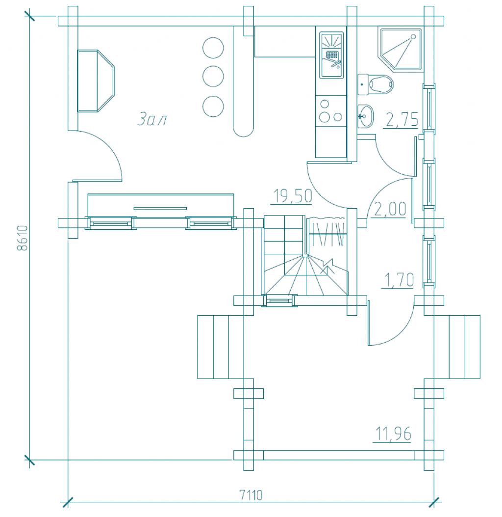
Площадь: 63 м²
  • Описание
  • Планы
Описание

2 спальни/Большая открытая терраса/Балкон.

Спроектирован в 2017 году специалистами компании "Сибирская Усадьба". Винтовые сваи, брус: 190*190 мм, металлочерепица.

  • 2 Спальни
  • Большая открытая терраса
  • Балкон

Заинтересовал проект или появились вопросы?

Мы перезвоним вам в течение минуты

Перезвоните мне

Похожие проекты

Наверх