Дом-ТР 11

Площадь: 195.96 м²
  • Описание
  • Планы
Описание

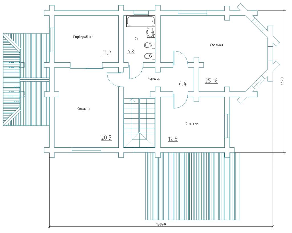
Спроектирован и построен в 2014 году специалистами компании «Сибирская Усадьба» в г. Красноярск. Конструктор сруба изготовлен на собственной производственной базе компании. Общая площадь дома 195,96 м2. 

Заинтересовал проект или появились вопросы?

Мы перезвоним вам в течение минуты

Перезвоните мне

Похожие проекты

Наверх