Дом-ПБ 5

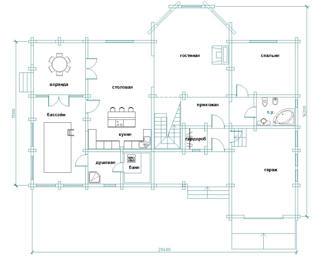
Площадь: 406.53 м²
  • Описание
  • Планы
Описание

Спроектирован и построен в 2015 году специалистами компании «Сибирская Усадьба» в г. Красноярск. Конструктор сруба изготовлен на собственной производственной базе компании. Общая площадь 406,53 м2.

Фото реализованных объектов

Заинтересовал проект или появились вопросы?

Мы перезвоним вам в течение минуты

Перезвоните мне

Похожие проекты

Наверх