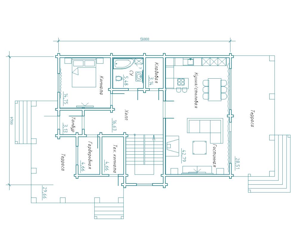
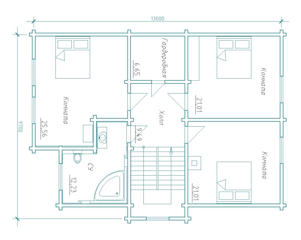
Дом-КБ 7

Площадь: 219.7 м²
  • Описание
  • Планы
Описание

Конструктор сруба изготовлен на собственной производственной базе компании. Общая площадь дома 219,70 м2. 

Фото реализованных объектов

Заинтересовал проект или появились вопросы?

Мы перезвоним вам в течение минуты

Перезвоните мне

Похожие проекты

Наверх