Дом-БЦ 8

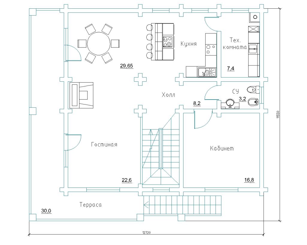
Площадь: 204.7 м²
  • Описание
  • Планы
Описание

Спроектирован и построен в 2014 году специалистами компании «Сибирская Усадьба» в г. Дивногорск, Красноярский край. Конструктор сруба изготовлен на собственной производственной базе компании. Общая площадь 184,47 м2 (без учета цокольного этажа). 

Фото реализованных объектов

Заинтересовал проект или появились вопросы?

Мы перезвоним вам в течение минуты

Перезвоните мне

Похожие проекты

Наверх