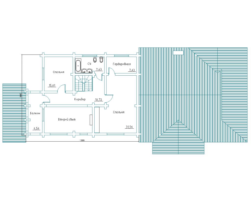
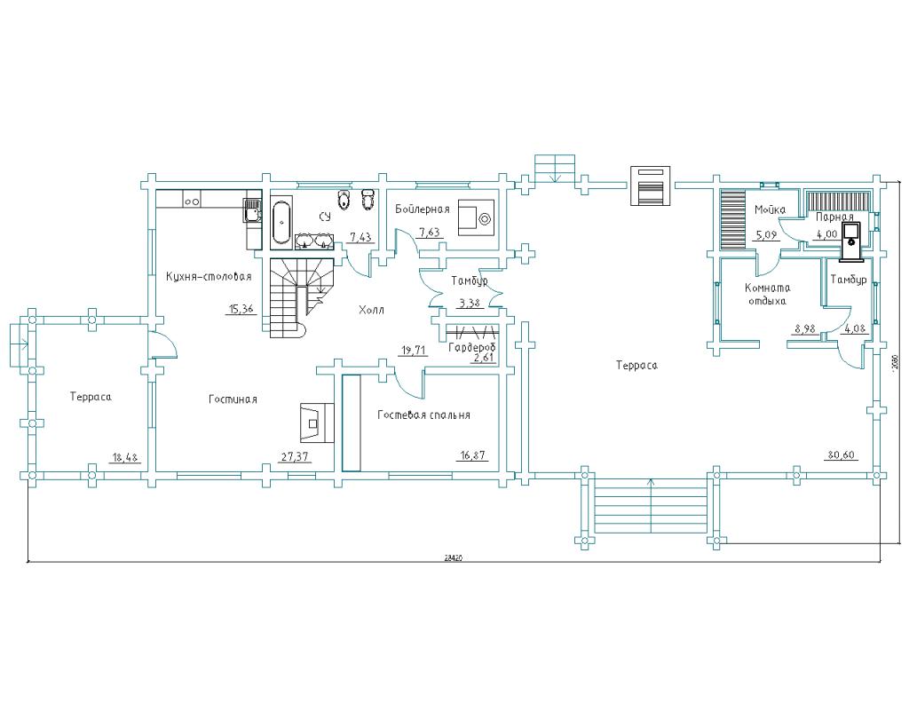
Комплекс-ТР 27

Площадь: 370 м²
  • Описание
  • Планы
Описание

Спроектирован и построен в 2013 году специалистами компании «Сибирская Усадьба» в п. Усть-Мана, Красноярский край. Конструктор сруба изготовлен на собственной производственной базе компании. Общая площадm 370 м2. 

Заинтересовал проект или появились вопросы?

Мы перезвоним вам в течение минуты

Перезвоните мне

Похожие проекты

Наверх