Дом-КБ 1

Площадь: 276.79 м²
  • Описание
  • Планы
Описание

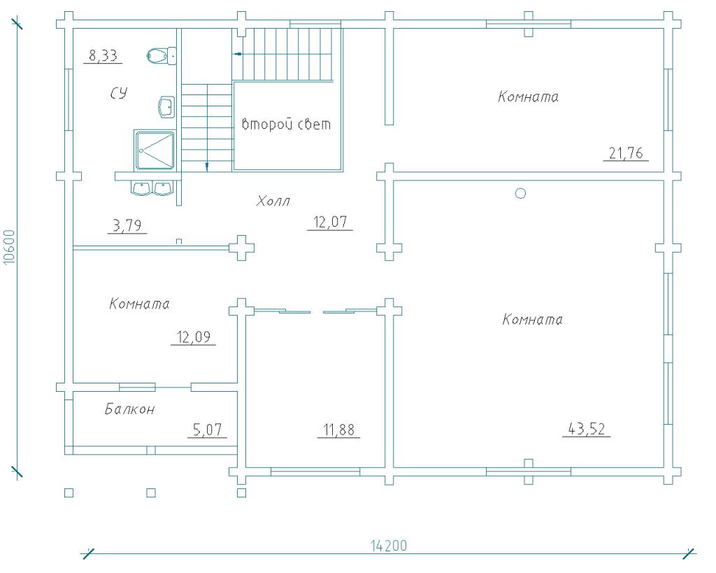
Спроектирован и построен в 2012 году специалистами компании «Сибирская Усадьба» в п. Английский парк, Красноярский край. Конструктор сруба изготовлен на собственной производственной базе компании. Общая площадь 276,79 м2. 

Заинтересовал проект или появились вопросы?

Мы перезвоним вам в течение минуты

Перезвоните мне

Похожие проекты

Наверх