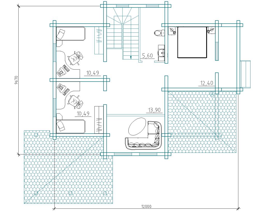
Дом-БЦ 17

Площадь: 190.37 м²
  • Описание
  • Планы
Описание

Спроектирован и построен в 2015 году специалистами компании Сибирская Усадьба в п. Новые раскаты, Красноярский край. Конструктор сруба изготовлен на собственной производственной базе компании. Общая площадь 190,37 м2.

Фото реализованных объектов

Заинтересовал проект или появились вопросы?

Мы перезвоним вам в течение минуты

Перезвоните мне

Похожие проекты

Наверх